A Chocolatier’s Kitchen
In this renovation for almost-empty-nesters, we worked with our clients to create spaces that allow them to pursue their interests within the footprint of the existing house. Her space: the kitchen equipped for crafting chocolates, culinary experiments, kombucha brewing, and of course day-to-day cooking. His space: the attic studio with room for playing music, reading, model making, and an amazing view to the sunset.
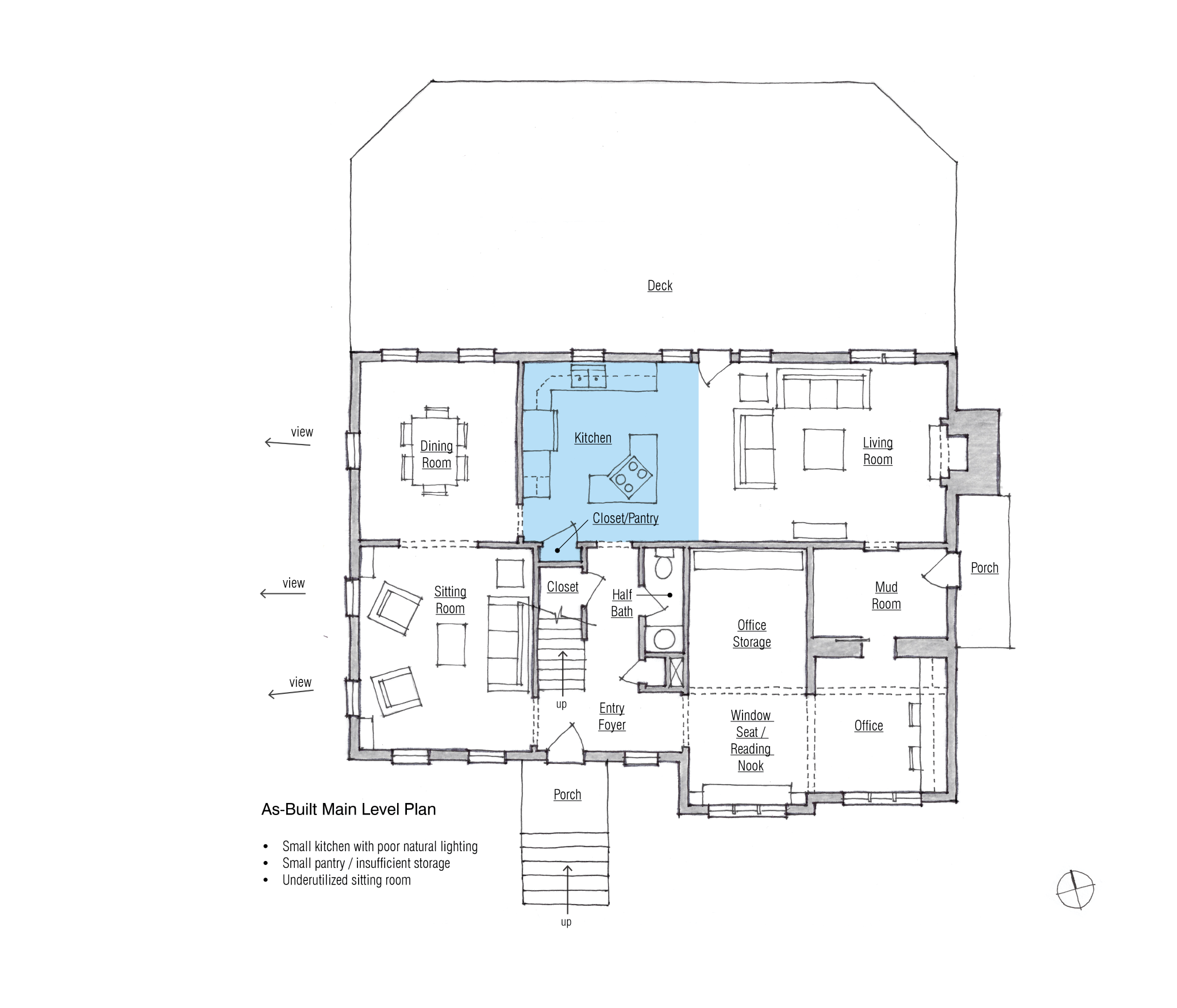
The project started with the notion of adding on some space for the kitchen, given the existing kitchen’s small footprint in the middle of the house. Rather than building out, we reshuffled: the kitchen doubles in size by absorbing the former dining room, the dining room steps into an underused sitting room with a beautiful western exposure, and a new porch with a pass-through window counter extends the kitchen outside.
Architecturally, the kitchen prioritizes natural light and views. Upper cabinets and large appliances are moved out of the main kitchen space; a microwave drawer and refrigerator drawers are conveniently tucked away under counters in favor of expansive windows that open the space to the outside. The kitchen also has the modern conveniences of a pot-filler and a coffee station hidden behind retracting doors when not in use. A large walk-in pantry houses two full-size refrigerators (one specifically for chocolate!) and freezer, along with storage for food goods and specialty appliances.
The existing attic was unfinished. New gable windows to the west frame a long, elevated view, while a shed dormer pops the roofline up to create some full standing height and a restful reading nook. The new studio space is left open and flexible for a variety of pursuits.
Location:
Purcellville, Virginia
PHOTOGRAPHY:
Nathan Webb + Caleb Snyder / Longhouse Architects
